DSIGNED logo

block 1 section 7 design + development tender competition
in 2023 the suburban Land Authority of Canberra embarked on a single stage request for tender process for block 1 section 7 Woden, a strategically important parcel of land 12,946m2 in size. located in the woden town centre. Next to the woden bus interchange, the new canberra institute of technology, hellenic club and bounding commercial district b1s7 is a key part of the burgeoning woden town centre.

the scheme was required to incorporate affordable housing, public carparking, multi-unit resiential, retail activities to support those uses.commercial premises as well as the

the resultant design process spanned may, june and july 2023. in 2024 the submission was successful, and the proponent, the hellenic club, purchased the site for redevelopment.

architect: fender katsalidis

david sutherland: project director, design lead

design team: jacqueline bartholomeusz, David Robinson, James Lawrence, Marina Rukavishnikova, Zhenwen Zhang, Max Cooke, Ciara Losty , Frazer Spencer, Isabel Solin, and Ethan Horne.

floorplate explorations
exploded isometric of the podium
diagrams exploring urban form
the public landscape
tree towers and public lift
urban form explorations
scheme diagrammatic sketch
ground plane explorations
exploded isometric of linked podium floors
interellationships of vertical landscaping
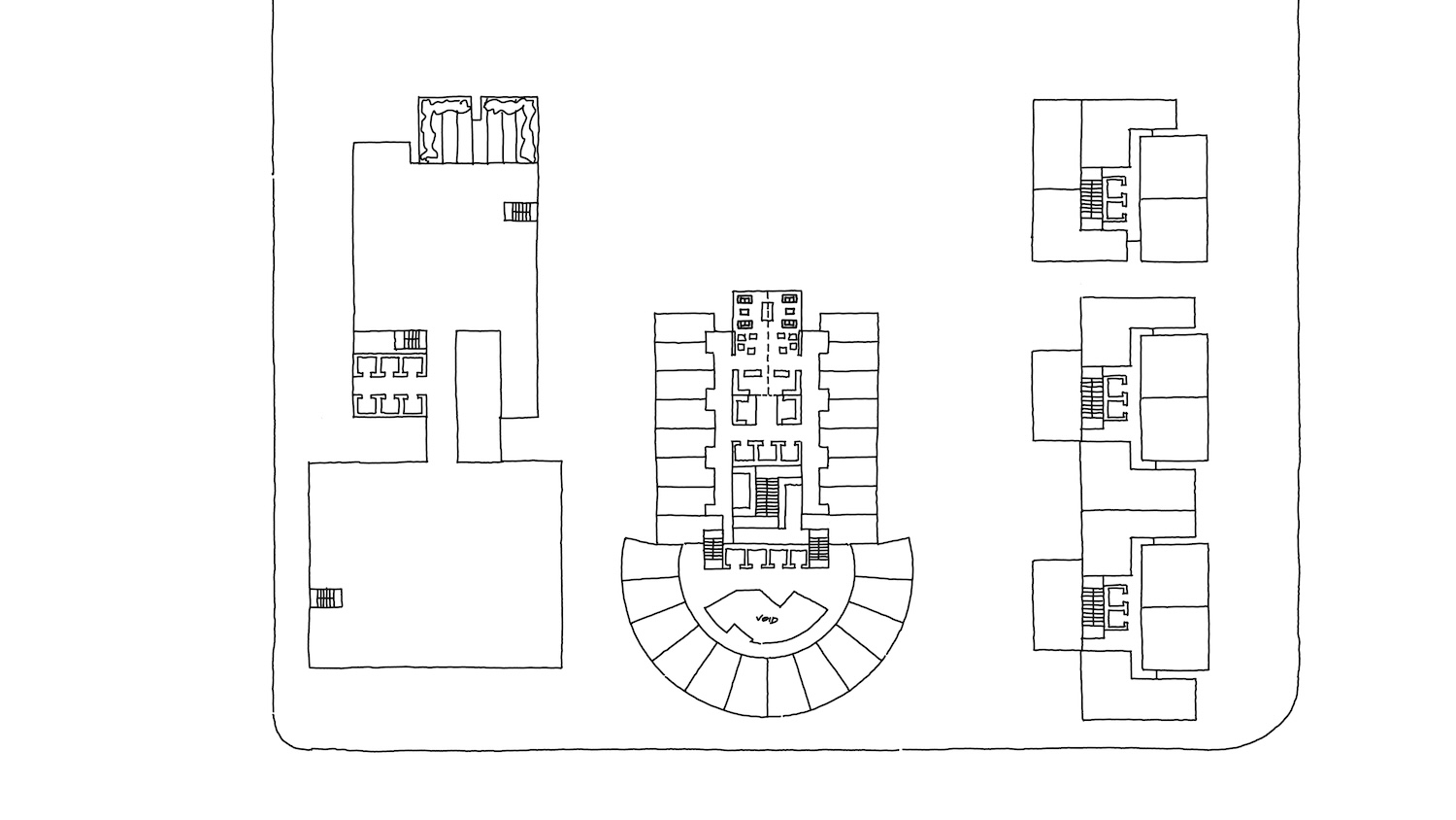
apartment plan explorations
floor plan sketch
exploration of building form
building arrangement sketch
diagrammatic built form explorations
ground plane public circulation possibilities
diagram of ground plane porosity
ground plane uses
elevational study
detailed floor planning study
upper level building massing
detailed ground plane study
early massing possibility study
description
description
description
description
description
description
description
description
description
description
description
description
description
description
description
description
description
description
description
description
description
description
description
description
description
description
description
description
description
description
description
description
description
description
description
description
description
description
description
description
description
description
description
description
description
description
description
description
description
description
description
description
description
description
description
description
description
description
description
description
description
description
description
description
description
description
description
description
description
description
description
description
description
description
description
description
description
description
description
description
description
description
description
description
description
description
description
description
description
description
description
description
description
description
description
description
description
description
description
description
description
description
description
description
description
description
description
description
description
description
description
description
description
description
description
description
description
description
description
description
description
description
description
description
description
description
description
description
description
description
description
description
description
description
description
description
description
description
description
description
description
description
description
description
description
description
description
description
description
description
description
description
description
description
description
description
description
description
description
description
description
description
description
description
description
description
description
description
description
description
description
description
description
description
description
description